مقطع در معماری چیست؟ – هر آنچه باید بدانید
مقطع در معماری، یک نمای جانبی از داخل ساختمان است که رابطه بین فضاهای داخلی و بسیاری از جزئیات مهم دیگر را در راستای یک برش عمودی نمایش میدهد. مقاطع، از نقشهها و مستندات مهم در پروژههای ساختمانی محسوب میشوند. اطلاعات قابل نمایش در این نقشهها، در هیچکدام از نقشهها و پلانهای ساختمان قابل ارائه نیست. به همین دلیل، معماران باید با اهمیت مقطع و مراحل رسم آنها به صورت دستی یا نرمافزای آشنا باشند. در این مطلب از مجله فرادرس، میخواهیم ببینیم مقطع در معماری چیست و چه کاربردی دارد.
- تفاوتهای مقطع معماری با پلان و نما را یاد میگیرید.
- نحوه تفسیر جزئیات و نشانههای مقطع معماری را میآموزید.
- خواهید توانست مراحل ترسیم دقیق مقطع را به درستی اجرا کنید.
- با کاربردهای مقطع برای پروژههای معماری آشنا میشوید.
- نحوه استفاده از نرمافزارهای تخصصی برای رسم مقطع را یاد میگیرید.
- میآموزید چطور با حفظ استانداردها، مقاطع دقیق و قابل اجرا بکشید.


در ادامه، ضمن تعریف مقطع در معماری، نحوه خواندن المانهای این نقشه ساختمانی را آموزش میدهیم. سپس، به توضیح مراحل اصلی رسم مقطع و بهترین نرمافزارهای موجود برای این کار (به همراه معرفی بهترین منابع یادگیری) میپردازیم. در انتها، ضمن معرفی کاربردهای اصلی مقاطع معماری، نکات تکمیلی در تهیه یک مقطع خوب و کاربردی را بیان میکنیم.
تعریف مقطع یا برش در معماری چیست؟
در حوزه معماری، اصطلاح مقطع برای اشاره به برشهای عمودی ساختمان مورد استفاده قرار میگیرد. این برشها، نمای جانبی فضاهای داخل ساختمان در یک راستای مشخص را نشان میدهد. البته مقطع میتواند برشی از یک شی یا المان از ساختمان نیز باشد.
مقطع ساختمان در معماری، پروفیل خارجی و داخلی ساختمان (اتاقها، مصالح، لایهها و یا دیوارها) را به طور همزمان به نمایش درمیآورد. به این ترتیب، نمایی از ساختمان در اختیار بیننده قرار میگیرد که معمولا در هیچجایی قابل مشاهده نیست. به عنوان مثال، معبد «پانتئون» (Pantheon) در کشور ایتالیا را در نظر بگیرید. اگر عنوان این معبد رومی را جستجو کنید، اغلب با تصاویری مشابه تصویر زیر مواجه میشود.

اکنون، تصویر زیر را در نظر بگیرید. این تصویر، یک مقطع عرضی از پانتئون را نمایش میدهد.

همانطور که مشاهده میکنید، مقطع پانتئون، اطلاعاتی را در رابطه با فضاهای داخلی و پیکربندی خارجی این سازه در اختیار ما قرار میدهد که هیچ نقشه یا تصویر دیگری قادر به ارائه آنها نیست. ترسیم مقطع یا برش عمودی سازه، روشها و هدفهای مختلفی دارد. هر یک از مقاطع ساختمانی میتوانند اطلاعات منحصر به فردی را در رابطه با المانهای مورد نظر معمار بخ بیننده نمایش دهند. این نقشههای ارزشمند، قادر هستند کلیات پروفیل خارجی سازه تا جزئیات مصالح را به کمک خطوط و المانهای گرافیکی به تصویر بکشند.
کاربرد و اهمیت مقطع در معماری چیست؟
نقشههای مقطع، از مهمترین مستندات ساختمانی هستند که به عنوان یکی از انواع نقشههای معماری در نظر گرفته میشوند. این نقشهها، به منظور ارائه جزئیات دقیقتر از بخشهای مختلف سازه، نمایش روابط فضایی، بررسی عملکرد طرح، تکمیل نقشههای اجرایی و تهیه نماهای زیبا مورد استفاده قرار میگیرند. به طور کلی، مقاطع معماری، امکان دسترسی به اطلاعاتی را فراهم میکنند که نقشههای دیگر قادر به ارائه آنها نیستند. از اینرو، تکمیل موفقیتآمیز فازهای مختلف پروژههای ساختمانی، به تهیه مقاطع باکیفیت و دقیق بستگی دارد. در بخشهای بعدی، بیشتر راجع به کاربردهای مقطع در معماری صحبت خواهیم کرد.
راندو مقطع در معماری چیست؟
راندو مقطع در معماری، ایجاد تصاویر واقعگرایانه و دقیق از فضاهای داخلی ساختمان بر اساس نقشههای مقطع است. در راندو مقطع، از تکنیکهایی نظیر هاشور، سایهگذاری و غیره برای نمایش جزئیات ظاهری و القای حس واقعی سازه استفاده میشود. تهیه راندو، کاربرد گستردهای در ارائه طرح به کارفرما و مشتری دارد.
تفاوت مقطع و پلان ساختمان در معماری چیست؟
مقاطع و پلانها، بخشی از نقشهها و مستندات پروژههای ساختمانی هستند که به منظور نمایش بصری جزئیات و ظاهر ساختمان مورد استفاده قرار میگیرند. مقاطع، رابطه عمودی بین فضاها و المانهای داخلی ساختمان را نمایش میدهند. از طرف دیگر، در پلانها، رابطه افقی بین فضاها و المانهای داخلی ساختمان نشان داده میشود. به عنوان مثال، در یک پلان میتوان مرزبندی اتاقها توسط دیوارها را مشاهده کرد. در صورتی که مقاطع، امکان درک ارتفاع این دیوارها را فراهم میکنند. با کنار هم گذاشتن پلان و مقطع، درک کاملی از اندازه و شکل فضاهای داخلی ساختمان به وجود میآید.
تفاوت نما و مقطع در معماری چیست؟
نمای خارجی ساختمان، در نقشه نقشهای با عنوان «نقشه ارتفاع» (Elevation Drawing) ترسیم میشود. نقشههای ارتفاعی، نماهای جانبی ظاهر بیرون ساختمان را از زوایای مختلف نمایش میدهند. برخلاف مقطع، اطلاعاتی از فضاهای داخل ساختمان، ارتباط بین فضاها، آیتمهای موجود و غیره در یک نقشه ارتفاعی نیست.

نام دیگر مقطع در معماری چیست؟
مقطع در معماری با عنوان برش نیز شناخته میشود. البته اغلب معماران از این نقشه ساختمانی با اصطلاح «سکشن» (Section) یاد میکنند. فرادرس، یک فیلم آموزشی کاربردی و مفید را با عنوان «آموزش نقشهکشی عمومی ساختمان» تهیه کرده است که میتواند به شما در یادگیری راحت و سریع تعریف و ترسیم انواع نقشههای ساختمانی از جمله مقطع یا سکشن کمک کند. لینک مشاهده این فیلم آموزشی در ادامه آورده شده است.
چگونه مقطع معماری را بخوانیم؟
هر مقطع، یک برش عمودی از درون ساختمان را نمایش میدهد. مقاطع، امکان مشاهده فضاهای داخلی و درک ارتباط بین آنها را فراهم میکنند.
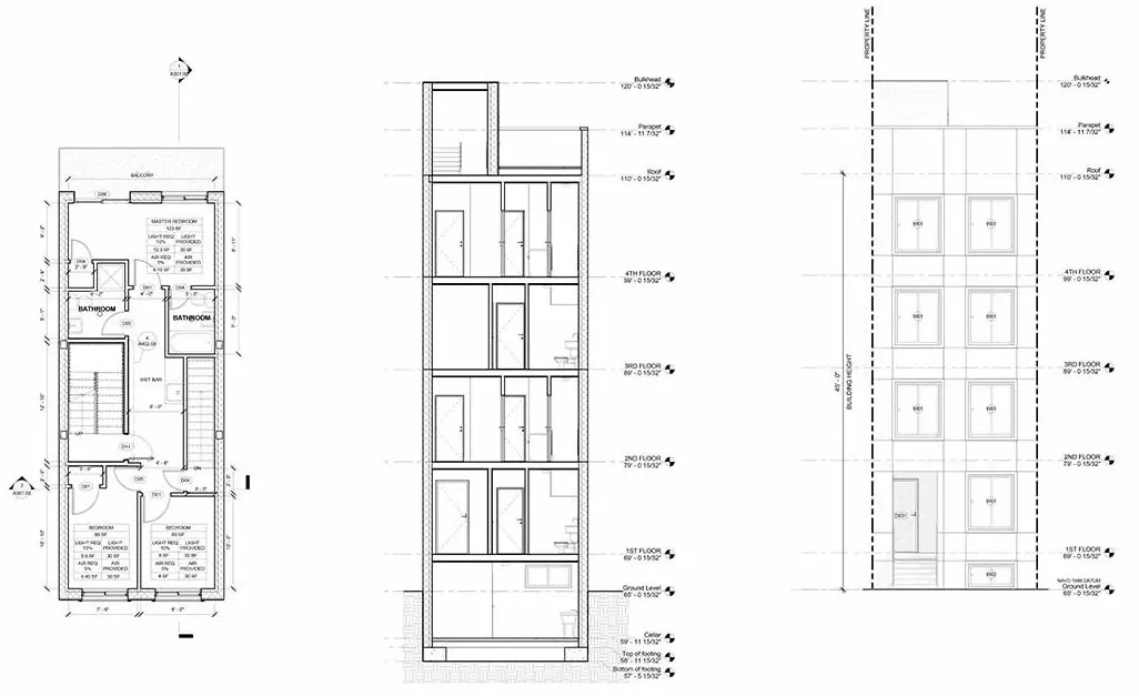
قواعد خواندن مقاطع معماری، به خواندن دیگر نقشههای ساختمانی شباهت دارد. به عنوان مثال، مقطع زیر را در نظر بگیرید.

المانهای مختلفی در ترسیم مقطع مورد استفاده قرار گرفتهاند. هر یک از این المانها، معنی خاص خود را دارند که در ادامه به توضیح آنها میپردازیم.
علامت مقطع در نقشه های معماری چیست؟
مقاطع، اطلاعات و جزئیات مورد نیاز برای درک بهتر دیگر نقشهها و پلانهای معماری را فراهم میکنند. علامت زیر در پلان ساختمان، نشاندهنده وجود نقشه مقطع در یک راستای مشخص است.

علامت مقطع در معماری از دو بخش تشکیل میشود. بخش اول (نیمه بالایی دایره)، یک حرف یا عدد است. این بخش، کد شناسایی مقطع را نمایش میدهد. در تمام مقاطع از یک قاعده نامگذاری (حرف یا عدد) استفاده کنید. بخش دوم علامت مقطع (نیمه پایینی دایره)، شماره شیت حاوی مقطع را نشان میدهد. فرض کنید در حال بررسی پلانی مانند پلان زیر هستید.

تصویر بالا، پلان کفسازی یک ساختمان را نمایش میدهد. همانطور که مشاهده میکنید، در دو راستای مشخص شده، علامت مقطع قابل مشاهده است. هنگام بررسی پلانها و برخورد به این کدها، میتوانید به نقشههای مقطع مراجعه کنید و اطلاعات بیشتری را در رابطه با وضعیت ساختمان در راستای مربوطه پیدا کنید. در پلان بالا، یکی از مقاطع با کد 01/301 و دیگری با کد 02/301 مشخص شده است. برای پیدا کردن مقطع 01/301 در بین مستندات و نقشههای ساختمان، به شیت 301 مراجعه کرده و به سراغ اولین مقطع بروید. دومین مقطع در این شیت، نمایش برش عمودی ساختمان در راستای مشخص شده با کد 02/301 خواهد بود.
معنی خطوط در مقطع معماری چیست؟
در مقاطع معماری، از چند نوع خط استفاده میشود. خطهای توپر، دیوارها، مبلمان و اشیای نمایان را نمایش میدهند. به عبارت دیگر، اگر ساختمان را در واقعیت و در راستای صفحه مقطع، برش دهیم، قادر به دیدن این خطوط خواهیم بود. در این شرایط، قطعا المانها و اشیایی وجود دارند که نمیتوانیم آنها را ببینیم. به عنوان مثال، شاید دیوار آیتم مهمی در پشت یک دیوار قرار داشته باشد. این آیتم و دیگر آیتمهای مهم پنهان، توسط خطچینها نمایش داده میشوند.

هنگام خواندن خطوط مقطع، به ضخامت آنها توجه کنید. دیوار، کف و المانهای سازهای، توسط خطوط نسبتا ضخیم به نمایش درمیآیند. برای نشان دادن قاب پنجرهها، درها و المانهای اینچنینی، از خطوط نسبتا نازک استفاده میکنند. زیاد بودن ضخامت خط یا پر بودن فاصله بین دو خط، به معنای عبور صفحه مقطع از درون دیوار، سقف، کف و غیره است.
در این ویدیوی کوتاه، با مفهوم مقطع، انواع آن و نقش آن در طراحی و تحلیل فضاها به زبان ساده آشنا میشوید.
معنی هاشور در مقطع معماری چیست؟
در نقشهکشی، برای نمایش جنس مصالح، از هاشور استفاده میکنند. بتن، چوب، عایق و غیره، الگوی هاشور مخصوص به خود را دارند. در برخی از موارد، فیتینگها و لوازم خانگی نیز توسط هاشور نمایش داده میشوند. برای اطلاع دقیق از معنی هر هاشور، میتوان به لجند نقشه مراجعه کرد.
اندازه گذاری و مقیاس مقطع معماری چگونه است؟
مقیاس مقطع معماری، به ابعاد ساختمان بستگی دارد. البته این مقیاس باید با دیگر نقشههای ساختمانی هماهنگ باشد. به طور کلی، مقطع یک طبقه از ساختمان با مقیاس 1:20 تا 1:10 رسم میشود. برای نمایش مقطع کل ساختمان، مخصوصا ساختمانهای چند طبقه تا بلند، مقیاسهای 1:100 تا 1:50 نیز مورد استفاده قرار میگیرند.

اطلاعات اضافی مقطع معماری چگونه نمایش داده میشود؟
اگر در کنار المانها و آیتمهای یک مقطع، مستطیلهای خطچیندار به همراه حباب و شماره مشاهده کردید، یعنی اطلاعات بیشتری در مورد آن المانها و آیتمها در نقشههای دیگر وجود دارد که باید آنها را نیز مورد مطالعه قرار دهید. به عنوان مثال، با مشاهده کدی مانند 3/A501 در کنار بخشی از مقطع، باید به نقشه شماره 3 در شیت A500 مراجعه کنید. نقشه مذکور، اطلاعات بیشتر و دقیقتری را در رابطه با بخش مورد نظر در اختیار شما قرار میدهد.

توجه داشته باشید که راستای نقشههای مقطع، معمولا بر روی نقشههای پلان و نماهای جانبی نیز آورده میشوند. بنابراین، اگر در یک راستای خاص، مقطعی از ساختمان وجود داشته باشد، میتوان کد آن را از روی پلانها و نماهای جانبی پیدا کرد.
بهترین روش برای یادگیری در مورد مقطع معماری چیست؟

بهترین روش برای یادگیری در مورد مقطع معماری، رسم مقاطع پروژههای واقعی به کمک اتوکد و دیگر نرمافزارهای عمومی و تخصصی در حوزه نقشهکشی است. البته، پیش انتخاب این نرمافزارها و رفتن به سراغ کار با آنها، نباید از یادگیری اصولی مفاهیم پایه نقشهکشی غافل شوید. به طور کلی، پیشنهاد میکنیم ابتدا یک منبع جامع در مورد نقشهکشی ساختمان را مطالعه کنید و سپس، به پیادهسازی دانش خود در محیط نرمافزاری بپردازید. ترجیحا در شروع کار به سراغ اتوکد بروید و با کسب تجربه بیشتر و در صورت نیاز، کار با نرمافزارهای تخصصیتر را یاد بگیرید. به این منظور، به منبعی نیاز دارید که ضمن مرور مباحث تئوری مهم، رسم مقطع معماری توسط نرمفزارهای تخصصی را به صورت کاربردی آموزش داده باشد. فرادرس، چندین فیلم آموزشی تئوری و عملی را توسط اساتید مجرب تهیه کرده است که میتواند به یادگیری سریع و راحت شما کمک کند و تجربه شما را در این زمینه را افزایش دهد. لینک مشاهده این فیلمها در ادامه آورده شده است:
- منابع پیشنهادی فرادرس برای یادگیری اصول تئوری
- منابع پیشنهادی فرادرس برای یادگیری نقشهکشی با اتوکد
- منابع پیشنهادی فرادرس برای یادگیری پروژهمحور نقشهکشی
در مطلب «نقشهخوانی ساختمان — آموزش تصویری و به زبان ساده»، به آموزش خواندن انواع نقشههای ساختمانی و معرفی اصول اولیه این مهارت مهم پرداختیم. در ادامه این مطلب از مجله فرادرس، نکات مورد نیاز برای خواندن نقشههای مقطع معماری را به شما آموزش میدهیم.
مراحل رسم مقطع در معماری چگونه است؟
روشهای متعددی برای کشیدن مقطع در معماری وجود دارد. این کار به صورت دستی یا کامپیوتری و در قالب ترسیمات دوبعدی و سهبعدی انجام میگیرد. بهترین روش رسم مقطع در معماری، روشی است که دقت و سرعت آن بالا باشد. این هدف، معمولا با استفاده از نرمافزارهای کامپیوتری محقق میشود.
فارغ از روش انتخابی برای رسم مقطع در معماری، باید به یک سری نکات توجه ویژهای داشت. به عنوان مثال، تعداد مقاطع مورد نیاز برای یک پروژه، ثابت و مشخص نیست. به همین دلیل، تمام مقاطع تهیه شده باید آیتمهای مشخصی مانند موارد زیر را نمایش دهند:
- لایههای دیوارهای بیرونی ساختمان
- دیوارهای سازهای به همراه تیرها و پستها
- جزئیات راهپله
- ارتفاع و تغییرات کف و سقف
- گچبری و ظریفکاری در، پنجره و قرنیز
- جزئیات کابینتها و مبلمانهای سفارشی
- اطلاعات اضافی برای کمک به درک بهتر کارکنان اجرایی از طراحی سازه
توجه داشته باشید که ترسیم مقطع در معماری، زمانی تکمیل میشود که تمام پلانهای کف و پلانهای ارتفاعی تهیه شده باشند. با توجه به نکات ارائه شده، مراحل مختلف رسم مقطع در معماری را به طور خلاصه توضیح میدهیم.
۱. انتخاب خط برش
مقطع، یک برش خیالی از سازه است. بنابراین، برای ترسیم مقطع مورد نظر، ابتدا باید موقعیت خط برش را تعیین کنید. تعیین این خط و به خاطر سپردن موقعیت دقیق آن، باعث جلوگیری از سردرگمی و اشتباه گرفتن مقاطع مختلف با یکدیگر میشود.
۲. رسم مرز بیرونی سازه
پس از تعیین خط برش، باید مرز بیرونی ساختمان را رسم کنید. این ترسیمات، مانند یک پوسته، محدوده دور ساختمان از نمای مقطع را نمایش میدهند. در این مرحله، نیازی به اضافه کردن در و پنجره نیست.

۳. اضافه کردن کف و سقف
در مرحله بعد، نوبت به اضافه کردن المانهای مرتب با کف و سقف به ترسیمات میرسد. در این مرحله، شما باید از ضخامت تیرآهنهای کف و سقف و آیتمهای متصل به کف اطلاع داشته باشید. نکته مهم در هنگام اضافه کردن کف و سقف به مقطع معماری، رعایت مقیاس است. در صورت عدم رعایت مقیاس جزئیات، تمام مقطع اشتباه خواهد بود.
۴. اضافه کردن در و پنجره
پس از اتمام کف و سقف، باید از ابعاد دقیق در، پنجره و قابها برای اضافه کردن آنها به مقطع استفاده کنید.
۵. دیوارهای داخلی و المان های سازه ای
در این مرحله، اضافه کردن تمام تیرها و پستها به مقطع انجام میگیرد. علاوه بر این المانها، دیوارهای داخلی و دیگر المانهای سازهای را نیز باید مد نظر قرار داد.
۶. اضافه کردن در و پنجره روی دیوارها
اکنون، نوبت به اضافه کردن در و پنجره روی دیوارها میرسد. در این مرحله، مقطع، شکل بهتری به خود میگیرد و ظاهر واقعی سازه را بهتر از قبل نمایش میدهد.
۷. اضافه کردن سقف و کف کاذب
در صورت اجرای سقف و کف کاذب، باید سطح آنها را در مقطع مشخص کرد.
۸. برچسب گذاری آیتم ها
تا به این مرحله، تقریبا تمام االمانها و آیتمهای اصلی مقطع به آن اضافه میشوند. اکنون، زمان برچسبگذاری بخشهای مختلف مقطع است. این کار، به منظور مشخص کردن نوع و اندازه آیتمها انجام میگیرد. با استفاده از اطلاعات مربوط به نوع و اندازه آیتمها، میتوان از درستی مقیاس ترسیمات اطمینان حاصل کرد. در صورت اشتباه بودن مقیاس حتی یک آیتم، کل پروژه در معرض خطر قرار خواهد گرفت.
۹. اضافه کردن مشخصات به مقطع
مشخصات نقشه یا بلوک عنوان، یکی از بخشهای مهم نقشههای ساختمانی است که اطلاعات عمومی این نقشهها را در اختیار خواننده قرار میدهد. اطلاعات مربوط به نامها، تاریخها، توضیحات کلی، وضعیت، کد نقشه، بازنگری، مقیاس و ابعاد، در بلوک عنوان آورده میشود.
بهترین نرم افزار رسم مقطع در معماری چیست؟

رسم اغلب نقشههای معماری، توسط نرمافزارهای تخصصی صورت میگیرد. این نرمافزارها، علاوه بر قابلیتهای طراحی دوبعدی و سهبعدی، امکان ایجاد مقطع را نیز فراهم میکنند. رسم مقطع به کمک نرمافزارهای طراحی، ضمن تسریع فرآیند نقشهکشی، دقت کار را نیز بالا میبرند. از بهترین نرمافزارهای تخصصی برای رسم مقطع در معماری میتوان به موارد زیر اشاره کرد:
- «اتوکد» (AutoCAD): محبوبترین نرمافزار نقشهکشی دوبعدی که در ترسیم طرحهای اولیه، نقشههای فنی، پلان ساختمان و غیره کاربرد دارد. این نرمافزار دقیق و قدرتمند، به منظور تهیه مقطع نیز مورد استفاده قرار میگیرد.
- «رویت» (Revit): یک نرمافزار تخصصی معماری که ضمن فراهم کردن امکان مدلسازی سهبعدی ساختمان، به معماران در تهیه مستندات، نقشهها و مقاطع کمک میکند.
- «آرشیکد» (ArchiCAD): نرمافزار رقیب رویت است که از رابط کاربرپسند و قابلیتهای مدلسازی پیشرفته بهره میبرد. بسیاری از معماران، آرشیکد را به عنوان گزینه اول خود برای مدلسازی سهبعدی و تهیه مقطع انتخاب میکنند.
- «وکتورورکس» (ٰVectorworks): نرمافزاری انعطافپذیر در زمینه طراحی دوبعدی و سهبعدی است که قابلیتهای متعددی را در اختیار معماران قرار میدهد.
نرمافزارهای بالا، به عنوان بهترین ابزارهای طراحی به کمک کامپیوتر (CAD) و مدیریت اطلاعات ساختمان (BIM) در نظر گرفته میشوند. برخی از نرمافزارهای طراحی سهبعدی نیز در تهیه مقطع در معماری کاربرد دارند. معروفترین نرمافزارهای این حوزه عبارت هستند از:
- «اسکچآپ» (SketchUp): یک نرمافزار تخصصی مدلسازی سهبعدی با رابط کاربری ساده و راحت است. این نرمافزار، معمولا به همراه اتوکد یا دیگر نرمافزارهای تخصصی حوزه معماری برای ترسیم مقطع با ظاهری جذاب مورد استفاده قرار میگیرد.
- «راینو» (Rhino): ابزاری پیشرفته در حوزه مدلسازی است که قابلیت کار با هندسههای پیچیده را دارد. معماران میتوانند از راینو برای تهیه مقاطع دقیق استفاده کنند.
- «تریدی مکس» (3ds Max): نرمافزاری حرفهای در حوزه مدلسازی سهبعدی و رندرگیری است. در حوزه معماری، معمولا از راینو برای تهیه مدلهای ساختمان با ظاهری نزدیک به واقعیت و ایجاد مقطع از روی آن مدلها استفاده میشود.
علاوه بر موارد معرفی شده، نرمافزارهای دیگری نیز وجود دارند که به طور غیرمستقیم، به رسم مقطع در معماری کمک میکنند. از بهترین ابزارهای کامپیوتری مفید برای این کار میتوان موارد زیر را نام برد:
- «فتوشاپ» (Photoshop): محبوبترین نرمافزار ویرایش تصویر است که در حوزه معماری، برای پردازش ثانویه مدلها و اضافه کردن المانهای بصری به آنها مورد استفاده قرار میگیرد.
- «ایندیزاین» (InDesign) و «ایلوستریتور» (Illustrator): از نرمافزارهای شرکت معروف ادوبی هستند که در زمینه تهیه ارائهها و مستندات معماری کاربرد دارند.
یک جریان کاری مناسب برای استفاده از ابزارهای معرفی شده در این بخش، نقشهکشی دوبعدی توسط اتوکد یا دیگر نرمافزارهای نقشهکشی، ایجاد مدل سهبعدی به کمک اسکچآپ، تهیه مقطع مورد نظر و اضافه کردن المانهای بصری به آن توسط فتوشاپ است.
کاربردهای مقطع در معماری چیست؟
در بخشهای قبلی، اشارهای به اهمیت و کاربرد مقاطع معماری داشتیم. در این بخش، به توضیح مختصر این کاربردها میپردازیم.
ارائه اطلاعات دقیق از جزئیات سازه
مقاطع معماریمیتوانند جزئیات دقیقتر و بیشتری از یک طرح را نسبت به دیگر پلانها و نماها نمایش دهند. این نقشههای ضروری، ضخامت دیوارها، ارتفاع طبقات، مصالح مورد استفاده و بسیاری از اطلاعات مهم دیگر راجع به ظاهر و جنبههای اجرایی پروژه را در اختیار مهندسان و سازندگان میگذارند. هر چه دقت و جزئیات مقاطع بیشتر باشد، هماهنگی بین واحدهای مختلف بهتر میشود.
نمایش روابط فضایی
از مهمترین کاربردهای مقطع در معماری میتوان به نمایش واضح رابطه فضایی بین عناصر مختلف سازه اشاره کرد. هنگام بررسی نماهای خارجی یا نقشههای پلان، درک کامل ارتباط بین فضاها، تناسب بین آنها و هماهنگی المانها ممکن نیست. به همین دلیل، در هر موقعیتی که نیاز به اطلاعات اضافی راجع به جزئیات مربوط به روابط فضایی باشد، یک مقطع رسم میشود و زمینه لازم برای کامل کردن درک ما از آن موقعیت را فراهم میکند.

بررسی عملکرد طرح
نورگیری، تهویه، جریان حرکت و دسترسی به بخشهای مختلف سازه، از جنبههای مهمی هستند که بررسی آنها، توسط مقاطع معماری میسر میشود. به عنوان مثال، ارزیابی فراهم شدن نور کافی توسط پنجرهها برای روشن شدن اتاقها، کافی بودن پهنای پلهها برای عبور و مرور راحت افراد و بسیاری از جنبههای مرتبط با عملکرد سازه، با در دست داشتن مقاطع و مطالعه آنها امکانپذیر است.
تکمیل نقشه های اجرایی
در برخی از موارد، پیمانکاران برای اجرای بهتر فعالیتهای خود، نیاز به اطلاعاتی دارند که امکان نمایش آنها در نقشههای اجرایی نیست. نقشههای مقطع، با ارائه این اطلاعات تکمیلی، از برداشت اشتباه تیم اجرایی جلوگیری میکنند. به این ترتیب، فعالیتهای پروژه به صورت یکپارچه و در مسیر اجرای موفقیتآمیز پیش میرود.
ارائه طرح های زیبا و مفهومی
هدف از رسم نقشه، بیان جزئیات پروژه به صورت گرافیکی و قابل فهم برای تمام ارکان پروژه است. معماران، با تهیه مقاطع و نماهای برشخورده از طرح ساختمان، جزئیات قابل درک برای کارفرما را به زیبایی به تصویر میکشند. مقاطع معماری، کاربرد بسیار خوبی برای هماهنگی بین افراد حاضر در جلسات مختلف دارند.
نمایش المان های سازه ای و غیره سازه ای
به طور کلی، مقاطع در نمایش المانهای زیر کاربرد دارند:
- جزئیات سازهای مانند تیرها، ستونها و فونداسیونها
- المانهای مرتبط با تاسیسات نظیر لولههای آب، سیمهای برق، کانالها و غیره
- المانهای مرتبط با طراحی داخلی از جمله مبلمان، لوازم خانگی، دکوراسیون و غیره
در آخرین بخش این مطلب از مجله فرادرس، برخی از نکات تکمیلی برای تهیه یک مقطع معماری خوب را مرور میکنیم.
نکات تکمیلی رسم مقطع در معماری
در این بخش، به معرفی مهمترین نکاتی میپردازیم که باید هنگام ترسیم مقطع معماری به آنها توجه داشته باشید.
صفحه مناسبی را برای مقطع زدن انتخاب کنید
مقطع در معماری، بر روی یک صفحه فرضی گذرنده از سازه رسم میشود. انتخاب این صفحه باید به گونهای باشد که اغلب ویژگیهای بارز طراحی نظیر گردش، ترتیب فضایی، سیستم سازهای، مصالح و نورپردازی را نمایش دهد. مقیاس و جهتگیری مقطع و چگونگی ایجاد ارتباط بین آن با سایر نقشههای ساختمان نیز باید مد نظر قرار گیرند.

از علائم و قواعد مناسب استفاده کنید
هنگام ترسیم مقطع معماری، از علائم و قواعد استاندارد نظیر خط مقطع، صفحه برش، پیکان جهتگیری و شناسه مقطع استفاده کنید. به کارگیری صحیح این المانها، باعث درک بهتر موقعیت و جهتگیری مقطع نسبت به نقشههای ارتفاعی و پلانهای دیگر میشود. نکته مهم دیگر، رعایت پیوستگی در رسم ضخامت خطوط، هاشورها و حاشیهنویسیها برای تمایز بین المانهای مختلف مقطع از جمله دیوارها، کفها، سقفها، بازکنندهها، مبلمان و روشناییها است. به عنوان مثال، در صورت استفاده از خطی با ضخامت مشخص برای نمایش دیوارها، ضخامت مذکور را به منظور نمایش تمام دیوارها رعایت کنید.
جزئیات و اندازه گذاری دقیق را فراموش نکنید
رسم مقطع در معماری، نیازمند دقت بالا است. به اندازه دقیق تمام المانها و فاصله بین آنها توجه کنید. ارتفاع کف به کف، ارتفاع سقفها، ابعاد در و پنجره، شیب رمپ و پله و اندازه المانهای سازهای مانند تیر و ستون، از مهمترین اندازههای قابل نمایش در مقطع هستند.
به دنبال خطاها و عدم تطابق ها باشید
آخرین نکته برای جلوگیری از رخ دادن خطا در مقطع معماری، بازبینی مو به مو و گشتن به دنبال مشکلات احتمالی است. اگر مقاطع درست رسم نشده باشند، احتمال تحمیل هزینه و به بار آمدن خسارتهای جبرانناپذیر در حین اجرای پروژه وجود دارد. بنابراین، به دنبال خطاها و عدم تطابقها بگردید. مقطع معماری را با دیگر نقشهها و مستندات از قبیل پلانها و دیتیلها مقایسه کنید. اندازهگذاریها، حاشیهنویسیها، علائم و قواعد را مورد بررسی قرار دهید. علاوه بر این موارد، نوشتههای مقطع را از نظر املایی و نگارشی بازبینی کنید. در نهایت، با رعایت نکات ارائه شده در این بخش، میتوانید مقاطع بینقصی را به کارفرما ارائه دهید.













